Helio 189 m2
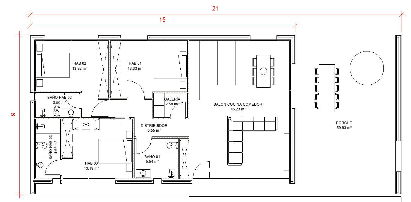
Vivienda que se desarrolla en una única planta de forma longitudinal, permitiendo orientar la casa según las necesidades y orientación del solar.
El porche cubierto actúa como acceso principal a la vivienda conectando el exterior con la gran estancia principal y zona de día: cocina, salón y comedor unidos de manera diáfana.
Zona más privada destinada al descanso de los propietarios dividida en tres dormitorios amplios y luminosos, uno de ellos con baño privado.
Grandes dimensiones
Contamos con un gran y extenso catálogo de viviendas, aunque si lo deseas y en tu cabeza tienes la vivienda de tus sueños, también construimos tu vivienda modular a medida.
Baños de altas calidades
El baño perfecto para tu familia
Sabemos que el baño es una de las habitaciones más importantes del hogar. Es el lugar ideal para mimarse, relajarse después de un largo día y prepararse para el día siguiente. Creemos que tu cuarto de baño debe ser un lugar donde puedas relajarte y desconectar del mundo exterior.
Tu casa es tu santuario
Ofrecemos dormitorios diseñados para maximizar tu tranquilidad.
Nuestras habitaciones están diseñadas con una decoración de estilo minimalista. Cada habitación tiene detalles refinados y muebles a medida que te facilitan la creación del espacio de tus sueños. Nuestros materiales y acabados atemporales hacen que cada habitación se sienta cómoda, cálida y luminosa.
El comedor es el corazón de su casa
Es el lugar donde se reúnen la familia y los amigos, donde se comparten las comidas, las risas y los recuerdos.
Es un espacio que debe ser acogedor, cómodo y bello, un lugar en el que se puede sentir a gusto compartiendo los momentos más alegres. En Otrial Houses, creemos que los comedores deben estar diseñados para que te sientas como un rey a la hora de comer.
Tu garaje. A tu manera.
Garajes totalmente integrados que pueden incorporarse fácilmente a la decoración de tu casa, ideales para los amantes de los coches como tú.
Tabla de superficies
Salón/Cocina
51,37m2
Hab 03
19,6m2
Hab 01
14,79m2
Baño 01
6,90m2
Hab 02
21,57m2
Galería
1,90m2
189m2
Total superficie construida
¿Tienes alguna pregunta
sobre Helio?
Ponte en contacto con nosotros por cualquier duda o consulta.

Vive la experiencia al
completo con nuestra
visitas 360º
Sumergirme ahora
En OTRIAL HOUSES trabajan arquitectos, ingenieros, diseñadores, interioristas…y todos ellos se prestarán y trabajarán para garantizar el éxito de tu propuesta soñada.
Ponte en contacto con nosotros y permítenos ayudarte y participar en tu hogar soñado. Llámanos ya y sin compromiso, nuestro equipo de arquitectos te acompañará en el proceso de tu nueva casa Otrial.



